Refined Ground Floor Apartment with Private Garden in Primrose Hill
Read More
Hi, I'm Danielle Lester.
Call me on 020 7727 4724 or email
me to view this property.
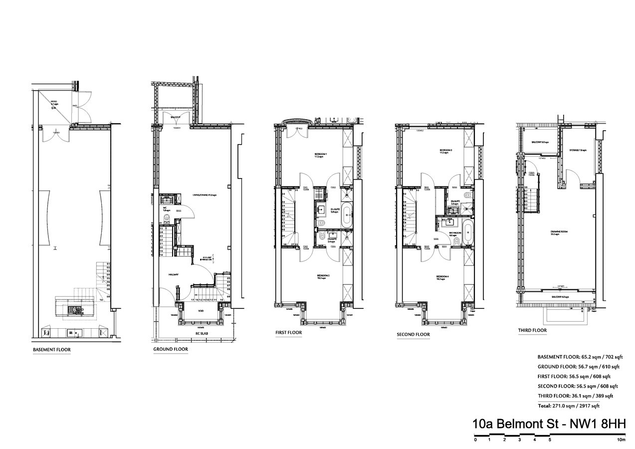
A recently constructed mid terrace house (271 sq m/ 2917 sq ft) benefitting from four bedrooms, all with en-suite bathrooms, and three private outside spaces. Uniquely refurbished to an exceptional standard throughout to include air conditioning to all bedrooms, underfloor heating throughout and bespoke ironworking both internally and externally, the house is ready for immediate occupation.
Belmont Street is well located in the heart of Camden, within close proximity to Chalk Farm Underground Station (Northern Line) and the open spaces of Primrose Hill.
Principal Bedroom with an En-suite Bathroom, Three further bedrooms, Two further Shower Rooms (en-suite), Bathroom (en-suite), Reception room, Media room, Fully Fitted Kitchen Open Plan to Dining Room and Informal Reception Room, Guest WC
Whilst Camden Town (commonly referred to as simply Camden) is focused around its iconic Camden High Street, the neighbourhood is probably most famous for its street markets. In total, the area boasts five markets, selling an incredible selection of food, clothing, antiques, jewellery, souvenirs, and other unique treasures. Each market is bustling throughout the week and becomes exceptionally busy on the weekends.…. Read More
BELMONT STREET, CAMDEN, LONDON, NW1 8HH
HOUSES TO LET





